Background Information
This example will look at the snow load calculations for a building located in Chicago, IL. Our given information is that the ground snow load is 25 psf. We are designing the snow loads for the roof of a single storey commercial building. You can follow along with the video of this example, and you can check out our other article for further design of these steel joists here.
Entering your Properties
Site and Building Properties
The site and building properties can be set in Project Defaults, or can be overridden in the snow loads calculator. To navigate to the Project Defaults, we can select the tab on the left hand side of the screen.




Roof Properties
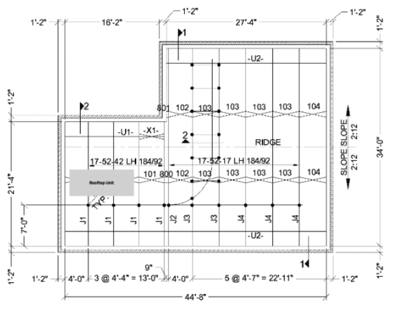
The horizontal distance from eave to ridge is equal to half of the building length, which we can input as ‘(21ft+4in)/2’, and ClearCalcs will calculate that to be 10.7 ft. Our roof pitch was indicated on the drawings as 2:12, which calculates the roof angle as 9.46 degrees.We can leave our roof surface type as “obstructed or non-slippery surfaces” and we can remove any additional properties for snow drifts. We’ll come back to those later.
Results
Our balanced snow load is found as 21 psf. ClearCalcs also calculates unbalanced snow load for a rafter system, which is 25 psf. For this example, we would use the balanced snow load of 21 psf. In other scenarios you might instead need to use the unbalanced snow surcharge for general cases, where we would add a rectangular surcharge load (9.43 psf) to a width of 8 ft, 9 in. Unbalanced snow loads do not need to be considered for slopes > 30.2° (7:12 roof pitch), but since our roof pitch is 2:12, we do need to consider it. These loads can now be used in any of your other designs.
Consider Snow Drift






